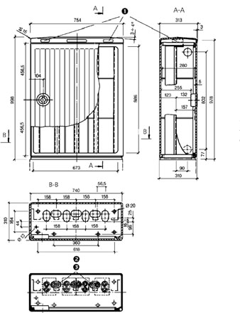
Корпус распределительного шкафа типа 59m1/59m2 для модульных оконечных устройств
![]() Увеличить Корпус распределительного кабельного шкафа 59m1 на цоколе 1060 ![]() Увеличить Обозначения: ![]() Увеличить Плата основания для модульных оконечных устройств |
- Пластмассовый корпус из поликарбоната, усиленного стекловолокном
- Дверца с шпингалетным запором, утопленная ручка и блокирующий замок с крестообразной бородкой типа 19, один ключ
- Поставляется в исполнении с одной и с двумя дверцами (односторонний или двухсторонний)
- Монтажный каркас для установки монтажных хомутов (3 х 10 +1 модулей)
- Фиксатор открытого положения дверцы и отсек для хранения документации заказывается отдельно
Технические данные:
- Материал корпуса: поликарбонат, усилен- ный стекловолокном, металлические части из нержавеющей, долговечной никель- хромовой стали марки Nirosta X 5 CrNi 1810
- Класс защиты: IP 54 по стандарту IEC 529
- Цвет: серый (аналогично RAL 7035)
- Класс горючести: VO по стандарту UL94
- Климатические условия эксплуатации: температура от -40 °С до +80 °С, тропикостойкость 59m1 на цоколе 1060
- Конструктивное исполнение: Многослойные стенки типа «сэндвич» для предотвращения образования конденсата, корпус съемный
| Номер заказа | Наименование | Вес ЕП | ЕП |
|---|---|---|---|
| 5267 1 600-02 | Распределительный шкаф типа 59, с одной дверцей (односторонний) Корпус распределительного шкафа типа 59m1 для плинтов LSA-PLUS 2/10, макс. емкость до 1200 пар, подготовлен для установки до 4 монтажных хомутов (номер заказа 5267 3 585-02) | 52,000 кг | 1 шт. |
| 5267 1 601-02 | Распределительный шкаф типа 59, с двумя дверцами (двухсторонний) Корпус распределительного шкафа типа 59m2 для плинтов LSA-PLUS 2/10, максимальная емкость 2400 пар, подготовлен для установки до 8 монтажных хомутов (номер для заказа 5267 3 585-02) | 54,000 кг | 1 шт. |
Принадлежности
| Номер заказа | Наименование | Вес ЕП | ЕП |
|---|---|---|---|
| 5267 3 585-01 | Монтажных хомут 2/10 для 2 x 10 + 1 модулей типоряда 2 | 0,820 кг | 1 шт. |
| 5267 2 552-00 | Монтажный хомут 2/10 глубина кабельного отсека: 50 мм для 1 x 10 + 1 модулей 2/10 с плоским пылезащитным колпаком Крепежный материал и материал защиты кромок | 0,500 кг | 1 шт. |
| 5267 3 585-00 | Монтажный хомут 2/10 для 1 x 10 + 1 модулей типоряда 2 | 0,460 кг | 1 шт. |
| 5267 3 585-02 | Монтажный хомут 2/10 для 3 x 10 + 1 модулей типоряда 2 | 1,220 кг | 1 шт. |
| 5267 2 577-02 | Крепежные материалы для монтажного хомута с Т-образным контуром | 0,020 кг | 1 шт. |
| 5267 3 589-00 | Направляющая для кроссировок | 0,003 кг | 1 шт. |
Специальные принадлежности
| Номер заказа | Наименование |
|---|---|
| 5267 2 737-00 | Поперечная направляющая для кроссировки через 4 секции для одностороннего шкафа типа 59 |
| 5267 2 736-00 | Поперечная кроссировочная направляющая через 8 секций для двустороннего шкафа типа 59 |
| 5267 2 578-00 | Монтажная шина, поперечная для корпуса распределительного шкафа типа 59m1 и 59 m2 |
Запчасти
| Номер заказа | Наименование | Вес ЕП | ЕП |
|---|---|---|---|
| 0099 0 004-00 | Уплотнительная замазка | 0,100 кг | 1 шт. |
| 5267 2 621-00 | Фиксатор дверцы для распределительных шкафов типа 59 | 0,575 кг | 1 шт. |
| 5267 3 537-00 | Отсек для документации, самоклеющийся | 0,200 кг | 1 шт. |
Варианты корпусов для монтажных хомутов и оконечных устройств EVs

Обозначения:
1 – Распределительный шкаф типа 59 с одной или двумя дверцами1.1 – Блокировочный замок KRONE типа 19, по 1 ключу на корпус1.2 – Отсек для документации (заказывается отдельно)1.3 – Фиксатор открывания дверцы (заказывается отдельно)2 – Монтажный каркас для оконечных устройств EVs для корпуса с одной дверцей2.1 – Плата основания
2.2 – Кроссировочные крючки
2.3 – 15 кроссировочных колец
2.4 – Оконечные устройства Evs 80 или Evs-NT (не входят в состав поставки)3 – Монтажный каркас для монтажных хомутов для корпуса с одной или двумя дверцами3.1 – Плата основания
3.2 – Кроссировочные крючки:односторонний – 5 шт., двухсторонний – 10 шт.
3.3 – Кроссировочные кольца:односторонний – 3 шт., двухсторонний – 6 шт.
3.4 – Монтажные хомуты (заказываются отдельно)
3.5 – Поперечная монтажная шина для коротких монтажных хомутов (заказывается отдельно)



